| 2009年6月 外壁の取り付けとコンクリート打ち |
![]() |
| 建物の周囲に石膏ボードを取り付け、その外側に化粧パネルを張付けていきます。 簡便な構造のため、この作業は数日間で完了しました。 次に基礎コンクリートを打つわけですが、狭い敷地のわりに総コンクリート量が2tにも 達したため、 少し、きつい作業になりました。 |
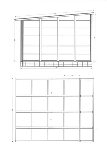
| 2009年5月 骨組み補強と屋根の取り付け |
![]() |
| 木材で骨組みを補強し、屋根板を取り付けました。簡便な構造であるため、 屋根による荷重を可能な限り小さくしました。また、隣接するオーディオ棟に 接合することにより横揺れや強風に対する強度を高めました。 |
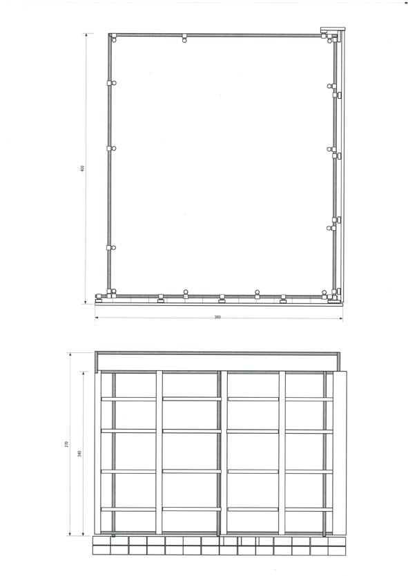
| 2009年3月 那須電子工房 作業場の設計 |
![]() ![]() |
| 作業場の設計図面をお絵描きソフトにより作成。基本的な構造と寸法が分かれば良い 程度のレベルの図面であり、詳細は造りながら検討するという適当な内容です。 安く、短期間でど素人が一人で作ることが出来ることを設計の基本方針としました。 |
| 2009年4月 那須電子工房 作業場建設工事の着工 |
![]() |
| 春まだ浅い時期に作業場の建設工事を開始しました。足場パイプを基本的な骨組みとし 5mのパイプの端を竹槍の様に切断し地中深く埋め込みます。竹槍の先のような端を 地面に突き刺し、空中高く上がっているもう一方の端を脚立に上りながら大型ハンマーで 叩くのは非常に重労働です。ハンマーを握る手の力が入らなくなる頃、漸く、竹槍の先は 地面から1m位の深さに達します。その深さに達すると地層は砂利層になるため、更に ハンマーで足場パイプを地中深く埋め込むことにより安定した基礎を作ることが出来ます。 |